Реализация объекта недвижимости приостановлена

Информация о квартире

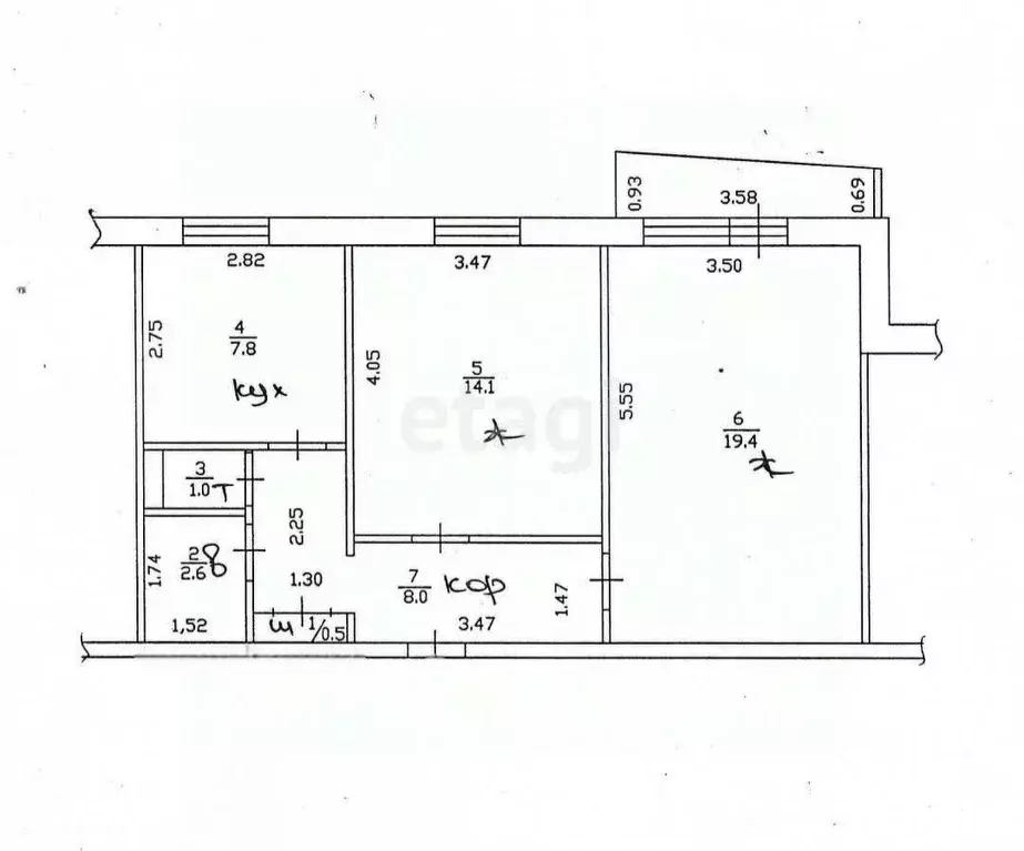
53.0 м2
Площадь
33.0 м2
Жилая
7.0 м2
Кухня
2
Комнаты
5
Этаж
5
Этажность

Дополнительная информация

Тип дома
панельный
Развернуть

2-к кв. Смоленская область, Смоленск ул. Попова, 46Б (53.4 м)

Продается двухкомнатная квартира в доме улучшенной планировки, полностью готовая к заселению, поскольку предлагается вместе с мебелью. Общая площадь квартиры составляет 53,4 кв.м, также имеется застеклённый балкон, площадью 3,58 кв.м. Объект отличается рациональной планировкой: жилая площадь 33,5 кв.м включает 2 изолированные комнаты (14,1 и 19,4 кв.м); раздельный санузел и кухня площадью 7,8 кв. м добавляют комфорта для проживания. Просторный функциональный коридор со встроенным шкафом создаёт гостеприимное впечатление и обеспечивает удобство хранения одежды и обуви.В квартире выполнен качественный современный ремонт с использованием новых материалов: натяжные потолки, пластиковые окна, ламинат по всей площади и новый кухонный гарнитур. Техническое состояние безупречно, объект не был в проживании после ремонта. Дополнительными преимуществами являются наличие технического этажа в доме и отдельный тамбур при входе в квартиру, что обеспечивает повышенный уровень приватности и комфорта.Дом расположен в развитом районе с развитой социальной и транспортной инфраструктурой. В пешей доступности находятся школа 11, поликлиника 2, детский сад, гипермаркет Магнит, почтовое отделение 31 и остановки общественного транспорта. Экологическую обстановку характеризует отсутствие загазованности и наличие благоустроенной территории. Дом окружен большим зеленым двором с новой детской площадкой и зоной с уличными тренажерами. Квартира полностью свободна от любых финансовых обременений и долгов, что гарантирует юридическую чистоту и безопасность сделки.Звоните Код пользователя: 54134Номер в базе: 9702644

Читать полностью

    Реализация объекта недвижимости приостановлена

    Не нашли подходящего объявления?

    Оставьте заявку, и наши риэлторы подберут квартиру в районе Смоленска

    (0)