5 400 000 Р 70 970 $ или 60 880

Информация о квартире

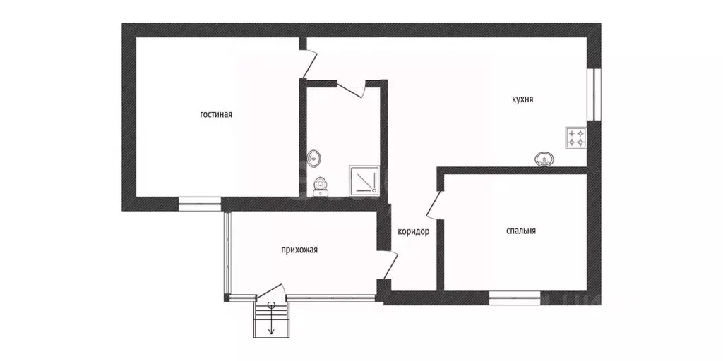
60 м2
Площадь
9 м2
Кухня
2
Комнаты
8
Этаж
9
Этажность

Дополнительная информация

Тип дома
панельный
Развернуть
Агент
+7 (910) 780-69-79
Начать чат с агентом

2-к кв. Смоленская область, Смоленск Королевка мкр, 7А (60.0 м)

ПРЕДЛАГАЕТСЯ К ПРОДАЖЕ КВАРТИРА В ЦЕНТРЕ КОРОЛЕВКИДвухкомнатная квартира с косметическим ремонтом ждет своих хозяев - 60 кв.м.- Кухня 9 кв.м.- Совмещенный с/у.- Два просторных, застекленных балкона.- Индивидуальное отопление - Имеется гардеробная.Рядом с домом вся необходимая инфраструктура: детские сады, школа, сетевые продуктовые магазины, ПВЗ, взрослая и детская поликлиника.Рядом остановка общественного транспорта.Уникальное предложение Подойдет как для семей с детьми, так и для молодых людей.Желательно наличный расчет.Полное сопровождение сделки и помощь с документами Звоните, просмотр в любое время Код пользователя: 137967Номер в базе: 5834233

Читать полностью

    Для того, чтобы купить двухкомнатную квартиру по адресу: Смоленск, Заднепровский, Королевка мкр, 7А, позвоните по телефону +7 (910) 780-69-79. Торопитесь! Объявление №30088432736 о продаже двухкомнатной квартиры опубликовано Вчера.

    Позвонить Написать
    5 400 000 Р70 970 $ или 60 880
    Агент
    +7 (910) 780-69-79
    Начать чат с агентом
    Похожие предложения
    2-к кв. Смоленская область, Смоленск пер. Рошаля, 9 (59.1 м) - Фото 1
    2-к кв. Смоленская область, Смоленск пер. Рошаля, 9 (59.1 м) - Фото 2
    2-комнатная квартира, общая площадь 59м², кухня 18м²

    Продаётся уютная 2-комнатная квартира в Смоленске Адрес: переулок РошаляВаш новый дом ждёт вас Двухкомнатная квартира, полностью готовая к заселению — идеальное решение для комфортной жизни в городе.Готовность к проживанию:Выполненный ремонт позволяет...
    • 59 м²
    • 2-ком
    • 1/1 эт.
    5 300 000 Р
    Агент
    +7 (919) Показать номер
    Посмотреть контакты
    2-к кв. Смоленская область, Смоленск ул. Лавочкина, 54г (62.8 м) - Фото 1
    2-к кв. Смоленская область, Смоленск ул. Лавочкина, 54г (62.8 м) - Фото 2
    2-комнатная квартира, общая площадь 62м², жилая 29м², кухня 12м²

    Продается просторная светлая квартира улучшенной планировки на шестом этаже десятиэтажного кирпичного дома 2012 года постройки. Объект отличается выгодным расположением: из окон открывается панорамный вид на город, а ориентация по сторонам света (юг-север)...
    • 62 м²
    • 2-ком
    • 6/9 эт.
    • кирпичный
    5 470 000 Р
    Агент
    +7 (919) Показать номер
    Посмотреть контакты
    3-к кв. Смоленская область, Смоленск ул. Чернышевского, 1 (68.4 м) - Фото 1
    3-к кв. Смоленская область, Смоленск ул. Чернышевского, 1 (68.4 м) - Фото 2
    3-комнатная квартира, общая площадь 68м², жилая 39м², кухня 10м²

    ПРОДАЕТСЯ ПРОСТОРНАЯ 3-КОМНАТНАЯ КВАРТИРА С АВТОРСКИМ РЕМОНТОМ В ЗАДНЕПРОВСКОМ РАЙОНЕ Уникальное предложение для тех, кто ценит комфорт, уют и выгодное расположение В продаже появляется светлая и невероятно ухоженная трёхкомнатная квартира на высоком...
    • 68 м²
    • 3-ком
    • 8/9 эт.
    • панельный
    5 500 000 Р
    Агент
    +7 (910) Показать номер
    Посмотреть контакты
    3-к кв. Смоленская область, Смоленск ул. Чернышевского, 1 (68.4 м) - Фото 1
    3-к кв. Смоленская область, Смоленск ул. Чернышевского, 1 (68.4 м) - Фото 2
    3-комнатная квартира, общая площадь 68м², жилая 39м², кухня 10м²

    ПРОДАЕТСЯ ПРОСТОРНАЯ 3-КОМНАТНАЯ КВАРТИРА С АВТОРСКИМ РЕМОНТОМ В ЗАДНЕПРОВСКОМ РАЙОНЕ Уникальное предложение для тех, кто ценит комфорт, уют и выгодное расположение В продаже появляется светлая и невероятно ухоженная трёхкомнатная квартира на высоком...
    • 68 м²
    • 3-ком
    • 8/9 эт.
    • панельный
    5 500 000 Р
    Агент
    +7 (910) Показать номер
    Посмотреть контакты
    4-к кв. Смоленская область, Смоленск ул. Беляева, 6 (94.9 м) - Фото 1
    4-к кв. Смоленская область, Смоленск ул. Беляева, 6 (94.9 м) - Фото 2
    4-комнатная квартира, общая площадь 94м², жилая 71м², кухня 10м²

    Продается великолепная 4-комнатная квартира в самом сердце города Ищете идеальное жилье для своей семьи? Эта квартира ваш шанс на комфорт и уют **Расположение:**Квартира расположена в престижном районе Колхозной площади, прямо напротив рынка. В шаговой...
    • 94 м²
    • 4-ком
    • 3/3 эт.
    • кирпичный
    5 500 000 Р
    Агент
    +7 (915) Показать номер
    Посмотреть контакты

    Не нашли подходящего объявления?

    Оставьте заявку, и наши риэлторы подберут квартиру в районе Смоленска

    (0)