8 197 911 Р 105 200 $ или 90 490

Информация о квартире

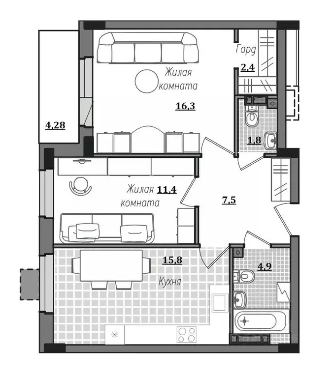
66 м2
Площадь
2
Комнаты
11
Этаж
16
Этажность
Развернуть
Агент
+7 (980) 826-52-06
Начать чат с агентом

2-к кв. Смоленская область, Смоленск ул. Александра Степанова, 14 ...

Продаётся 2-комнатная квартира в строящемся доме (дом 6), срок сдачи: I-кв. 2026, общей площадью 66.32 кв.м., на 11 этаже. Микрорайон Соловьиная роща. Новый квартал - новый масштабный проект АО Ваш дом . Концепция микрорайона разработана с акцентом на детали. Здесь не только удобно и комфортно жить, заниматься спортом, отдыхать, но и получать эмоции и социализироваться. Высокое качество возводимого жилья и ответственность перед клиентами - основа философии компании Ваш дом . Наша задача - находиться в постоянном диалоге с покупателем и развивающимся рынком. Каждый день мы стремимся оправдать ваш выбор в решении одной из самых важных жизненных задач - приобретение квартиры.Чистый воздух, тихие дворы с современными площадками для спорта и игр, развитая инфраструктура, детский сад, магазины, аптеки, фитнес-центры, уютные квартиры и современные инженерные решения.Каждый проект компании Ваш дом представляет собой тщательный выбор участка, детальную разработку генерального плана, подведение новых инженерных сетей.Для нас представление о комфорте не ограничивается рамками отдельной квартиры. На протяжении всей нашей деятельности мы всегда придерживались концепции строительства исключительно микрорайонов с полноценной инфраструктурой для жизни, а не отдельно стоящих домов. Архитектура Мы разработали новый, современный, яркий и выразительный формат жилья: лаконичная геометрия зданий, дизайнерские фасады домов. Перекликающиеся с фасадами оформление холлов и подъездов, высокие потолки, качественное осветительное и лифтовое оборудование. Отношение к местам общего пользования - холлам, лифтам - это показатель уровня дома. Здесь мы не скупимся на современные и оправданные решения. Атмосфера Всего пару шагов - и вы в чудесном и живописном парке Соловьиная роща . Сейчас он является истинным местом для отдыха, занятий спортом, прогулоки романтических встреч. Уютная внутренняя территория микрорайона разделена на тихие зеленые дворы, часть из которых будет разработана согласно концепции двор без машин . Акцент на озеленение и зонирование на активный и спокойный отдых. Комфорт Мы создаем планировки квартир, отталкиваясь от потребностей семьи, которая будет в ней жить. Планировки разрабатываем с учетом того, какие предметы современной домашней обстановки нужно предусмотреть и расставить на свои места: шкафы, диваны, стиральную машину и иную мебель. А в каждой кухне хватит пространства для всей семьи.

Читать полностью
    Позвонить Написать
    8 197 911 Р105 200 $ или 90 490
    Агент
    +7 (980) 826-52-06
    Начать чат с агентом
    Похожие предложения в Смоленске
    2-к кв. Смоленская область, Смоленск ул. Александра Степанова, 14 ... - Фото 1
    2-комнатная квартира, общая площадь 63м²

    Продаётся 2-комнатная квартира в строящемся доме (дом 6), срок сдачи: I-кв. 2026, общей площадью 63.49 кв.м., на 5 этаже. Микрорайон Соловьиная роща. Новый квартал - новый масштабный проект АО Ваш дом . Концепция микрорайона разработана с акцентом...
    • 63 м²
    • 2-ком
    • 5/16 эт.
    8 222 567 Р
    Агент
    +7 (980) Показать номер
    Посмотреть контакты
    2-к кв. Смоленская область, Смоленск ул. Александра Степанова, 14 ... - Фото 1
    2-комнатная квартира, общая площадь 63м²

    Продаётся 2-комнатная квартира в строящемся доме (дом 6), срок сдачи: I-кв. 2026, общей площадью 63.49 кв.м., на 8 этаже. Микрорайон Соловьиная роща. Новый квартал - новый масштабный проект АО Ваш дом . Концепция микрорайона разработана с акцентом...
    • 63 м²
    • 2-ком
    • 8/16 эт.
    8 221 118 Р
    Агент
    +7 (980) Показать номер
    Посмотреть контакты
    2-к кв. Смоленская область, Смоленск ул. Александра Степанова, 14 ... - Фото 1
    2-комнатная квартира, общая площадь 63м²

    Продаётся 2-комнатная квартира в строящемся доме (дом 6), срок сдачи: I-кв. 2026, общей площадью 63.49 кв.м., на 6 этаже. Микрорайон Соловьиная роща. Новый квартал - новый масштабный проект АО Ваш дом . Концепция микрорайона разработана с акцентом...
    • 63 м²
    • 2-ком
    • 6/16 эт.
    8 221 118 Р
    Агент
    +7 (980) Показать номер
    Посмотреть контакты
    2-к кв. Смоленская область, Смоленск ул. Александра Степанова, 14 ... - Фото 1
    2-комнатная квартира, общая площадь 63м²

    Продаётся 2-комнатная квартира в строящемся доме (дом 6), срок сдачи: I-кв. 2026, общей площадью 63.49 кв.м., на 4 этаже. Микрорайон Соловьиная роща. Новый квартал - новый масштабный проект АО Ваш дом . Концепция микрорайона разработана с акцентом...
    • 63 м²
    • 2-ком
    • 4/16 эт.
    8 168 902 Р
    Агент
    +7 (980) Показать номер
    Посмотреть контакты
    2-к кв. Смоленская область, Смоленск ул. Александра Степанова, 14 ... - Фото 1
    2-комнатная квартира, общая площадь 63м²

    Продаётся 2-комнатная квартира в строящемся доме (дом 6), срок сдачи: I-кв. 2026, общей площадью 63.49 кв.м., на 2 этаже. Микрорайон Соловьиная роща. Новый квартал - новый масштабный проект АО Ваш дом . Концепция микрорайона разработана с акцентом...
    • 63 м²
    • 2-ком
    • 2/16 эт.
    8 115 817 Р
    Агент
    +7 (980) Показать номер
    Посмотреть контакты

    Не нашли подходящего объявления?

    Оставьте заявку, и наши риэлторы подберут квартиру в новостройке в районе Смоленска

    (0)